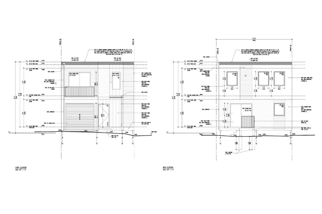
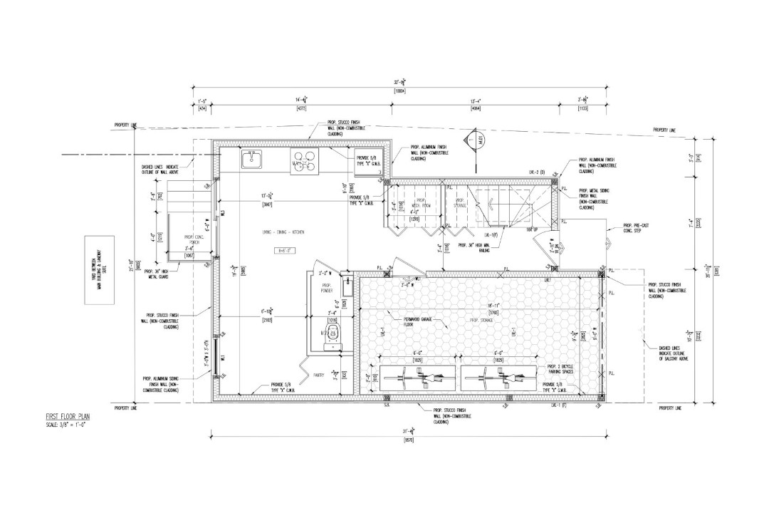
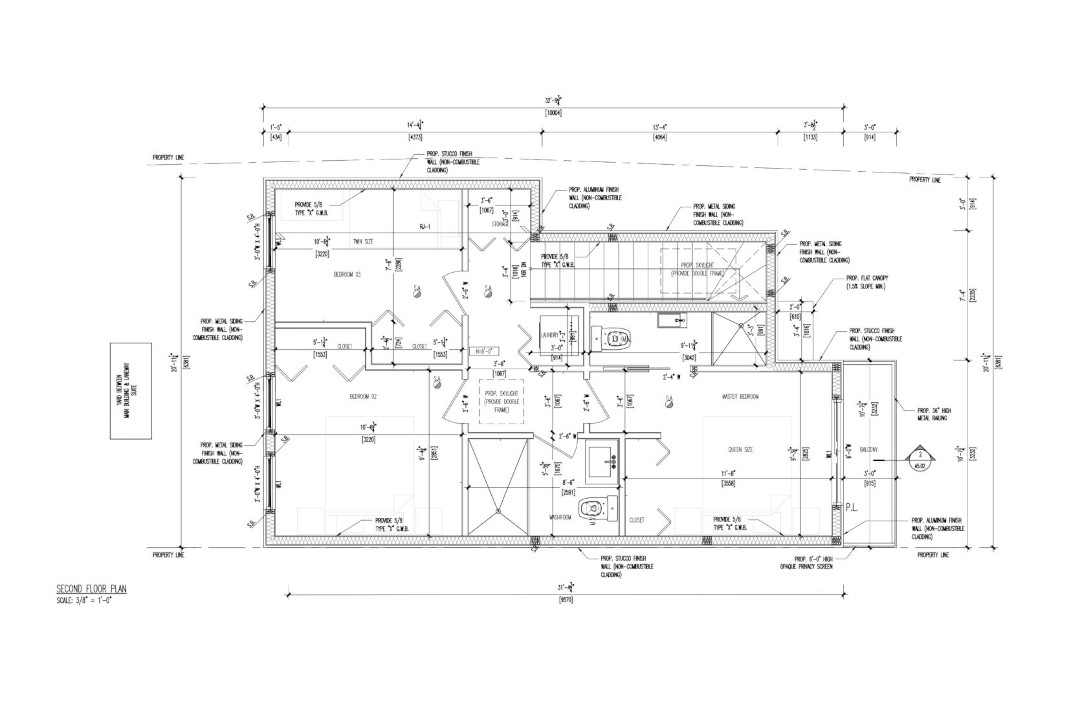
35 Blackthorn Ave Commercial HVAC Engineering This is where we would inclue a description of the project. next project 3025 Petawawa Blvd